INNENARCHITEKTUR

VRR

DIE BRILLE

PROJEKT: DIE BRILLE

DETMOLD | 2019  


UMBAU „DIE BRILLE“ KRUMMESTRASSE 4 


INNENARCHITEKTUR FÜR EINEN AUGENOKTIKER

110 QM LADENFLÄCHE, UMBAU IN 12 TAGEN


LEISTUNGEN: ENTWURF, KONZEPT, LICHTPLANUNG, GRAFIK, AUSFÜHRUNGSPLANUNG &  BAULEITUNG

 

KINDERGARTEN

„Musikkindergarten“

PROJEKT: KITA "Musik-KiTa" 

DETMOLD | 2013  


INNENARCHITEKTUR UND FASSADENGESTALTUNG FÜR DIE KINDERTAGESSTÄTTE „MUSIKKINDERGARTEN“  IN DETMOLD


LEISTUNGEN: ENTWURF, KONZEPT, GRAFIK, BAULEITUNG


IN COOP MIT MERWITZ ARCHITEKTEN

 

GESUNDHEITSAMT

Kreis Lippe

PROJEKT: GESUNDHEITSAMT IM MEDICUM

LEMGO | 2016  


NEUGESTALTUNG DER EMPFANGSTHEKE, WARTEZONE UND WARTEZIMMER


LEISTUNGEN: ENTWURF, KONZEPT, GRAFIK, LEITSYSTEM AUSFÜHRUNGSPLANUNG &  BAULEITUNG

 

AQUALIP

PROJEKT: AQUALIP

DETMOLD | 2011  


SANIERUNG  DER DUSCHEN UND SANITÄRANLAGEN DES AQUALIP IN DETMOLD


LEISTUNGEN: ENTWURF, KONZEPT, GRAFIK, AUSFÜHRUNGSPLANUNG &  BAULEITUNG

 

KUNDENZENTRUM

PROJEKT: SERVICE IM ROSENTAL

DETMOLD | 2010  


UMBAU DER SPARKASSEN ZWEIGSTELLE ROSENTAL 13. 


350 QM ALTBAU UND EIN EHEMALIGER TANZSAAL WURDEN ZU EINEM KUNDENZENTRUM FÜR DIE STADTWERKE DETMOLD UND DEN STADTVERKEHR DETMOLD UMGEBAUT.


LEISTUNGEN: ENTWURF, KONZEPT, GRAFIK, AUSFÜHRUNGSPLANUNG &  BAULEITUNG

 

AWO

Seniorenzentrum „Rosenhöhe“

PROJEKT: AWO SENIORENZENTRUM ROSENHÖHE

BIELEFELD | 2016 - 2023  


INNENARCHITEKTUR FÜR DAS SENIORENZENTRUM 

ROSENHÖHE IN BIELEFELD


LEISTUNGEN: ENTWURF, KONZEPT, GRAFIK, BAULEITUNG

 

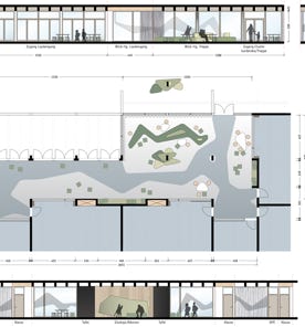
KIRCHHEIDE

WETTBEWERB: SCHULEN LIEME & KIRCHHEIDE

LEMGO | 2025  


WETTBEWERBSENTWURF FÜR ZWEI SCHULEN IN LEMGO


MIT habermann.decker.architekten & Gruppe Freiraumplanung 

PROJEKT: VRR GELSENKIRCHEN

GELSENKIRCHEN | 2025  


INNENARCHITEKTUR FÜR EINEN NEW-WORK-SPACE

LEISTUNGEN: ENTWURF, KONZEPT, MÖBEL, MATERIAL, GRAFIK, 

HNO PRAXIS

PROJEKT: HNO PRAXIS BLOMBERG

BLOMBERG | 2021  


INNENARCHITEKTUR FÜR EINE HNO PRAXIS

150 QM PRAXISFLÄCHE, UMBAUZEIT 4 WOCHEN


LEISTUNGEN: ENTWURF, KONZEPT, LICHTPLANUNG, GRAFIK, AUSFÜHRUNGSPLANUNG & BAULEITUNG

OK

Diese Website verwendet Cookies. Bitte lesen Sie unsere Datenschutzerklärung für Details.