ARCHITEKTUR

CASA BIKINI

PORT SÓLLER | MALLORCA 

CASA BIKINI NEUBAUPROJEKT

AUF EINEM DER LETZTEN FREIEN HANGGRUNDSTÜCKE IN PORT DE SÓLLER MIT SÜD-WEST AUSRICHTUNG, ENTSTEHT EIN ZWEIGESCHOSSIGES WOHNHAUS MIT MEHR ALS 300 QM NUTZ- UND WOHNFLÄCHE UND EINEM EINZIGARTIGEM BLICK ÜBER DEN HAFEN VON PORT DE SÓLLER UND DIE TRAMUNTANA BERGE. DER ENTWURF IST GEPRÄGT DURCH DAS ENGE ZUSAMMENSPIEL VON ARCHITEKTUR UND INNENARCHITEKTUR UND ZEICHNET SICH DURCH HOCHWERTIGE REGIONALE MATERIALIEN UND OBERFLÄCHEN UND EINEM ZEITLOSEM STIL AUS.  

IN ZUSAMMENARBEIT MIT DUO

www.casa-bikini.com

 

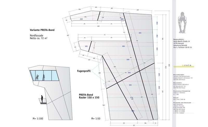
RUTSCHENTURM

PROJEKT: RUTSCHENTURM IM AQUALIP

DETMOLD | 2020  


NEUBAU EINES RUTSCHENTURM FÜR DAS AQUALIP IN DETMOLD

LEISTUNGEN: ENTWURF & KONZEPT, PLANUNG, BAUANTRAG, 

VERGABE UND BAULEITUNG

 

HAUS WILLMINE

PROJEKT: HAUS WILLMINE | UCKERMARK | 2022 


SANIERUNG EINER ALTEN SCHEUNE G 


LEISTUNGEN: ENTWURF, KONZEPT, BAUANTRAG, AUSFÜHRUNGSPLANUNG & BAULEITUNG

 

HAUS M45

IN BEARBEITUNG

PROJEKT: HAUS M45 | OERLINGHAUSEN | 2023  


UMBAU EINES RESTHOFES ZUM WOHNHAUS 


LEISTUNGEN: ENTWURF & KONZEPT, PLANUNG, BAUANTRAG,

AUSSCHREIBUNGEN, BAULEITUNG

REALISATION IN 2021-2024

 

HAUS PP

PROJEKT: HAUS PP | DETMOLD | 2022


ALTBAUSANIERUNG | INNENARCHITEKTUR 


LEISTUNGEN: ENTWURF, KONZEPT, GRAFIK, AUSFÜHRUNGSPLANUNG & BAULEITUNG

 

HAUS M

IN BEARBEITUNG

PROJEKT: HAUS M | DETMOLD | 2018


ALTBAUSANIERUNG EINES DENKMALGESCHÜTZTEN FACHWERKHAUSES UND NEUBAU VON EINEM TORHAUS 


LEISTUNGEN: ENTWURF & KONZEPT, PLANUNG, BAUANTRAG,

REALISATION IN 2023

 

HAUS P

PROJEKT: HAUS P | DETMOLD | 2013  


ALTBAUSANIERUNG UND NEUGESTALTUNG 


LEISTUNGEN: ENTWURF, KONZEPT, GRAFIK, AUSFÜHRUNGSPLANUNG &  BAULEITUNG

 

HAUS W

PROJEKT: HAUS W | DETMOLD | 2003


ANBAU AN EIN EINFAMILIENHAUS UND AUSBAU DACHGESCHOSS MIT ERWEITERUNG DER GAUBEN


LEISTUNGEN: ENTWURF, KONZEPT, AUSFÜHRUNGSPLANUNG &  BAULEITUNG

 
OK

Diese Website verwendet Cookies. Bitte lesen Sie unsere Datenschutzerklärung für Details.